Ricerca l'immobile

Affittasi Capannone a Faenza

Tipo contratto: Affitto
Prezzo: Trattativa Riservata

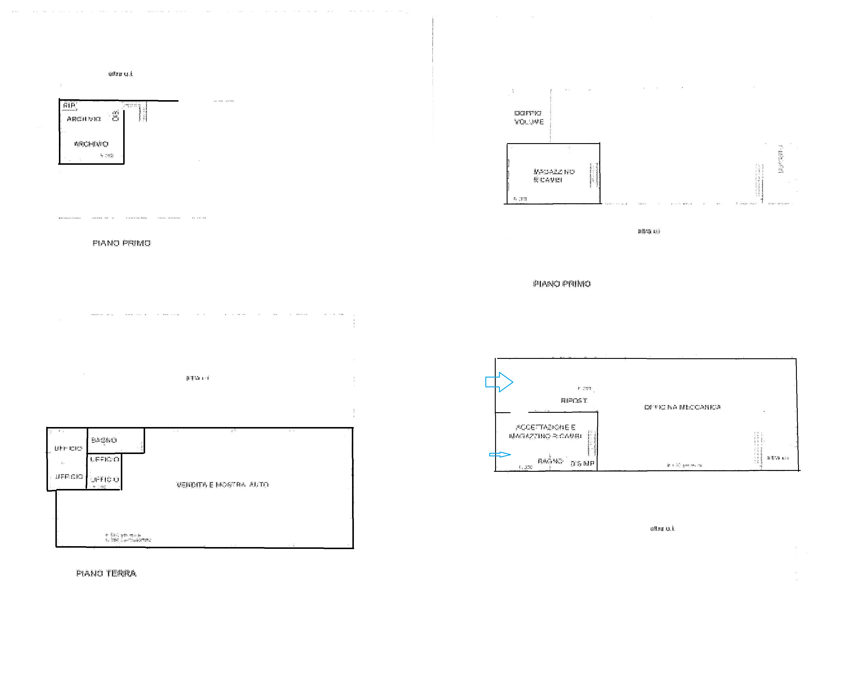
Planimetria dell'immobile

Descrizione Immobile

Affittasi capannone Si propone in affitto capannone di oltre 1.250 mq, sito in zona artigianale a Faenza, in posizione comoda e facilmente accessibile. La proprietà si compone di due unità, la prima è attualmente adibita a destinazione commerciale, la seconda ad uso industriale. Possibilità di cambio d'uso a seconda delle esigenze. L'unità è caratterizzata da ampie vetrate che lo rendono perfetto per realizzare molteplici attività di natura commerciale, artigianato e produzione, palestra/centro benessere, officina, centro logistico, ecc. Un valore aggiunto è dato dal parcheggio privato di oltre 2.00mq che offre ai possibili clienti un servizio essenziale aumentando la sicurezza e l'efficienza e migliorando l'esperienza dei clienti. Ottimo il rapporto metratura/prezzo. Contattaci per ulteriori informazioni!

Dettagli sull'immobile

Tipologia: Capannoni
Tipo contratto: Affitto
Riferimento: AF 02
Condizione: Buono stato
Indirizzo: Via Luigi Galvani, 41
Cap: 48018
Città: Faenza (RA)
Zona: Faenza
Anno di costruzione: 1990
Superficie: 1250 m2
Situato al piano: Terra

Servizi dell'immobile

Garage: No
Cantina: No
Giardino: No
Locali: 5
Numero di Bagni: 1
Classe energetica:
Riscaldamento autonomo: No
Condizionatore: No
Cucina: No
Ascensore: No

Richiedi informazioni

@
Tipo contratto: Affitto
Prezzo: Trattativa Riservata

Planimetria dell'immobile